
買房是有什么需要注意的戶型知識點?
房子是家的寄托,是安全感、歸屬感的體現。買房是一件需要舉全家之力的大事,裝修也是馬虎不得,當戶型有缺陷時,就要靠后期設計彌補。
房屋朝向
一般來講,朝南的房屋采光好,冬暖夏涼,也不會太潮濕,是最受歡迎的朝向;朝西的房屋有西曬,下午的采光不錯,但是夏天有西曬的困擾;朝東的房子早晨和上午采光好,光線相比朝西的房子要柔和;朝北的房子采光差,夏天比較涼快,但是冬天就比較陰冷。

南北通透
南北通透是指南北都有正對著的窗戶,能夠最大限度進行空氣對流。一般指餐廳與客廳的窗戶或者廚房與客廳窗戶正對著,形成對流的這種情況,就可以稱之為南北通透。


戶型動線
戶型動線是指人在戶內活動的路線,好的動線能夠提升戶型利用率,進而提高人們的居住品質。戶內動線主要有三種,分別是居住動線、家務動線、來客動線。良好的動線是指從入戶門進客廳、臥室、廚房的三條線不會交叉。

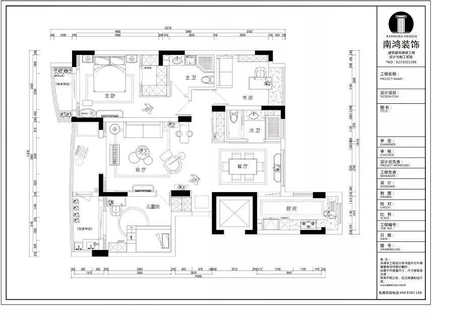
全明戶型
全明戶型是指房子里所有的功能房間,比如客廳,餐廳、廚房、書房、臥室、衛生間都有良好采光的窗戶。

承重墻和非承重墻
一般來說,承重墻不可拆。在裝修的時候,想要做拆改,一定要弄明白。
分辨承重墻最好的方法是看建筑圖紙,承重墻會有標注。


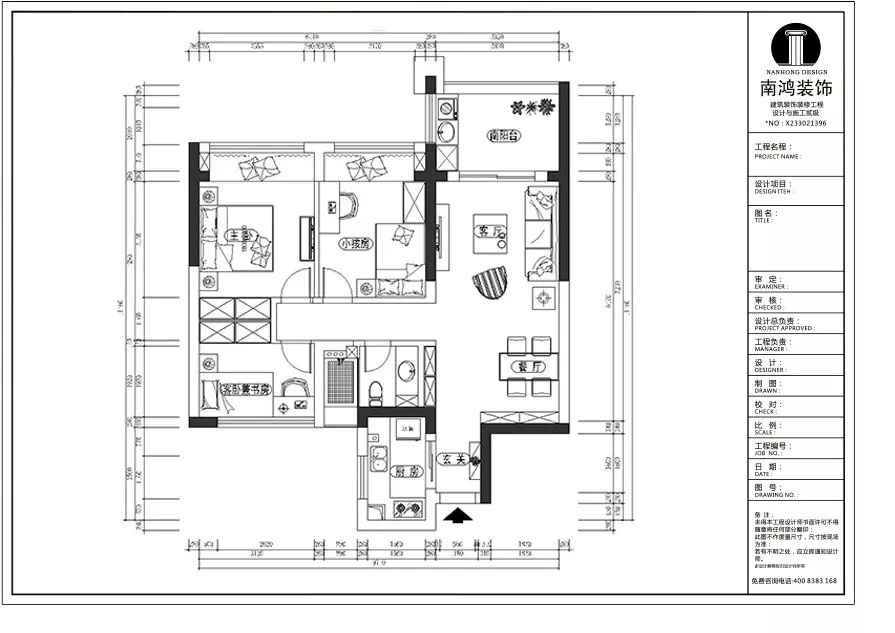
開間和進深
把房子的主要采光面稱為開間(一般指東西的距離),與其垂直的稱為進深(一般指南北的距離)。開間和進深的比例為4:6較為合適,如果開間太小,進深過大,會影響房子的采光,反之則室內溫度、濕度不穩。

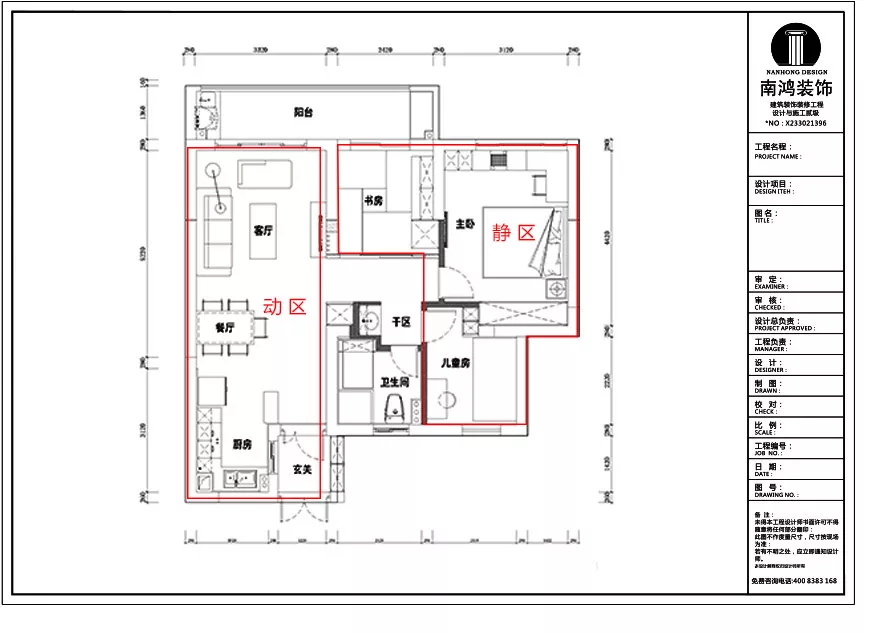
動靜分明
所謂“動靜分離”,就是把動區(客廳、廚房、餐廳等)跟靜區(臥室、書房等)通過合理的空間布局給分離開來,在動區的活動保持的基礎下,又能讓靜區能夠保持一定的私密性,減少彼此之間的干擾。


以上就是杭州裝修公司南鴻裝修管家為您分享的 《買房是有什么需要知道的戶型知識點》 的全部內容,更多有關家居裝修的知識和經驗。您還可以訂閱我們的南鴻裝飾官方微信(微信號:NHZS-4008383168),免費獲取我們給您精心準備的家居裝修技巧和精美樓盤樣板房效果圖等你來挑選哦
上一篇:臥室燈光怎么布置有利于睡眠?
下一篇:雨季裝修有什么需要注意的?
免費
免費申請戶型規劃
專屬設計師免費1對1全程服務
已經有3776人申請
24小時免費咨詢電話
400-8800-618
你家預算
108080元