
云河西苑122㎡簡美風格|感受家的脈脈柔情

面對不規則的房屋結構,這套作品的設計過程可以說充滿了相當大的挑戰和曲折。不光是結構調整,每個家庭背后的故事,對家的期許,對收納的要求,空間尺度,生活細節,未來性等等,都需要我們一一梳理并加以滿足。
本案作為一個三代同堂的居所,需要的不單是開敞的空間,更多的是怎么用設計讓一家人的生活步入一個新的起點,讓居住在這里的人充滿力量去迎接新的挑戰。

項 目 地 址:云河西苑
建 筑 面 積:122㎡
裝 修 風 格:簡美
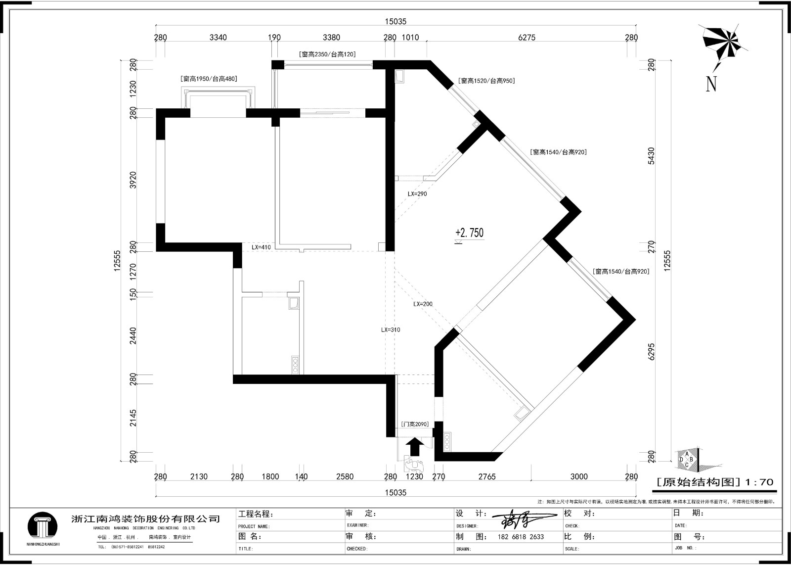
戶型圖
▲原始戶型圖
▲平面布置圖
設計說明:
1、客衛做了干濕分離,并改變了門的朝向。
2、入戶門原本是正對廚房,現在做了一定銜接口處理。
3、門廳玄關進行了造型墻面處理。
客廳

客廳主色調為米白色,帶有輕奢意味的金屬元素鑲嵌在其中,于總體柔美舒緩的氛圍中透出一股低調的精致。
電視背景墻做了整面的定制柜,適當留空,不會過滿,空間感十足,且兼具展示和收納功能。

深藍綠色的絲絨沙發上,兩幅朦朧縹緲的印象畫做對稱掛放,散發出靜謐幽美的氣息。

餐廳



餐廳的一面墻壁定制了餐邊柜,具有很強的收納功用,配以圓形黑色拉手,造型簡約時尚。米白色的絨質餐椅為日常用餐注入了暖意。
過道

客餐廳之間過道上的幾何紋造型墻面引人注目,為空間帶來獨特的潮流現代感。
廚房

廚房由于戶型的關系呈少見的三角式結構,不過并不影響下廚的動線流暢度?;壹y瓷磚一路向上延續到墻面,與白色櫥柜形成鮮明對比。窗邊還做了小吊柜,方便主人日常的碗筷擺放。
臥室


主臥延續了柔和色調,添加許多粉意為空間注入了一絲甜蜜的浪漫氣息。粉白色的高背床組合上棕色硬包背景墻,為臥室提供了舒適安靜的休憩氛圍。


次臥是一個低調沉穩的灰色空間,無論是頂部的藝術吊燈,還是深灰色的床頭柜,造型都非常簡約。落地窗為室內導入通透光線,顯得清爽而透亮。
家,不僅體現了對居住環境的不將就,更在于表達一種美好的儀式感。這套柔和的簡美之家,恰到好處地詮釋了寧靜又雅致的品味生活。
免費
免費申請戶型規劃
專屬設計師免費1對1全程服務
已經有3777人申請
24小時免費咨詢電話
400-8800-618
你家預算
108080元