
十一月設計師大會 | 這波內容豐富到爆表!
“天青色等煙雨,我在等快遞...”
又是一年一度的雙十一
小伙伴們都剁手幾輪了呢?

仿佛是為了迎接今天這個喜慶的日子,
昨日的11月設計師大會,
內容真的 超 級 豐 富 !

咳咳,話不多說,
趕緊一睹為快!

01
設計師PK賽
★MVP風采
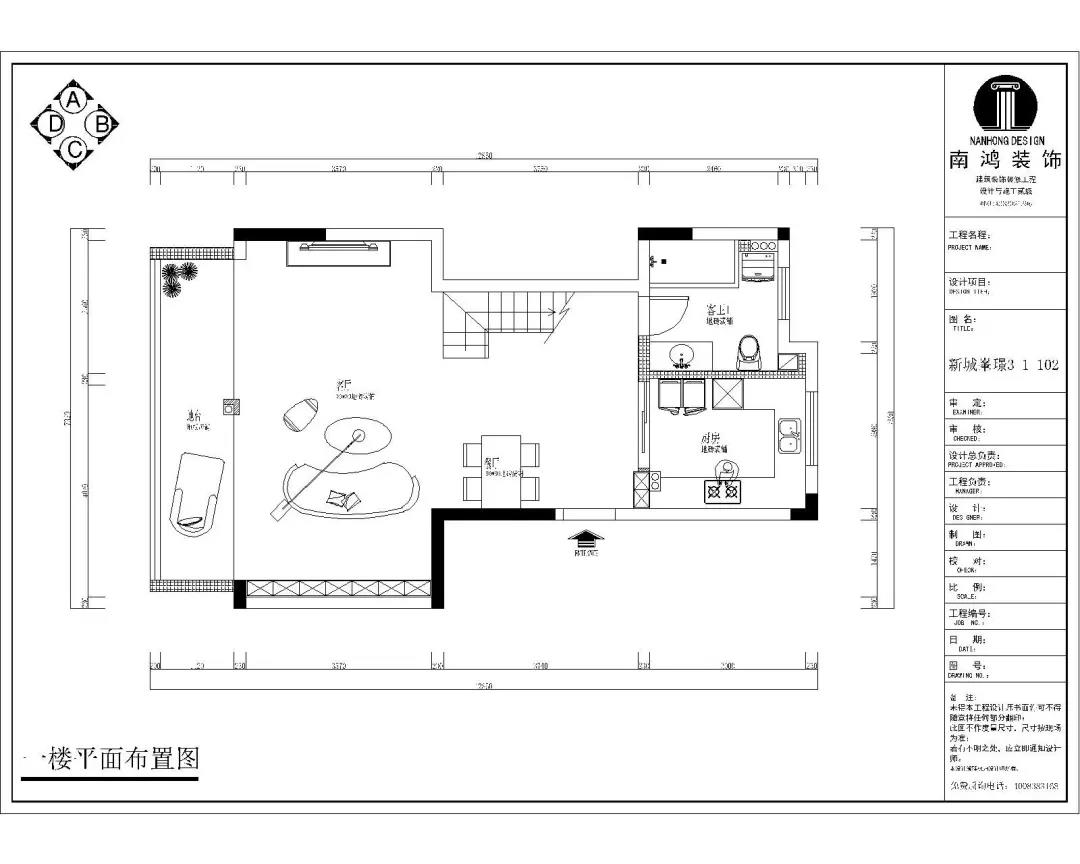
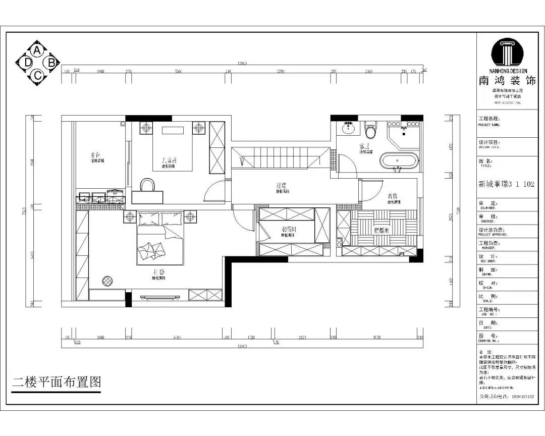
本次大會的MVP作品,是來自我們設計二部胡雅芳老師的現代風格案例——新城峯璟。

- 戶型圖 -


本案的戶型南北通透,一樓所有房間均打通,做了大客廳、餐廳和地臺休閑區,二樓則是臥室、客房與儲物區,上下動靜分離,落地效果十分有大宅的感覺。

??其他精彩作品
設計六部——萬泰風華新語

本案是一套小戶型的北歐風格設計,以淺灰為主色調,清爽干凈。設計師與客戶十分投緣,所以整個施工過程相當順利,工期約為5個月。
- 戶型圖 -


設計解析:敲除設備陽臺;擴大客廳視野;衛生間做了干濕分離;主臥入口改動
- 實景圖 -

城東分部——唐家景府

本案為124方婚房設計,客戶需求明確,如開放式廚房和書房、三式分離衛生間等,設計師也在本案中運用了諸多包括拱形,弧形,圓角,無主燈在內的流行元素,讓這個新家頗為時尚美觀。
- 實景圖 -

科技城分部——天城府

本案業主為一名單身男青年,在居室的主色調上偏愛低飽和色系,需要有適當的儲物空間,室內動線流暢,設計師結合他的需求定下了最終方案。
- 實景圖 -


蕭山分部——舟山錢府

本案為1070方的全案項目設計,由于住宅面積非常龐大,無論是前期量房,中期施工,還是后期軟裝進場,都是對設計師和全體項目施工人員的巨大考驗,而最終的落地效果也得到了客戶大大的肯定,為南鴻小伙伴點贊!
- 戶型圖 -

- 實景圖 -

▲西邊套

▲中間套

▲東邊套
設計三部——錢江府

本案為90方現代風格三室兩廳設計,選用的是公司1199套餐,主色調偏灰,線條分明,簡潔又耐看。
- 戶型圖 -

大宅部——設計師的家

本次大宅部的王佑飛老師給大家分享到的是他自己家的設計案例,風格為偏小眾的法式復古風,無論是色彩搭配還是家具選用,都生動透露出了兩個字:細致!一起來欣賞一波美圖吧~



02
產品知識學習
本次會議還邀請了南鴻的部分材料合作商來為設計師們講解相關產品知識,方便設計師日后能直觀運用到實際項目中去。

這也是設計師大會的新增環節,目的正是幫助設計師們進一步提升自身的知識面與綜合實力。
03
頒獎時刻

▲李總為業績突出與上月優勝的設計師頒獎
會議的結尾,李總講話表示,如今消費者對家居環保的要求越來越高,設計師和項目經理除了要關注“裝修環保”之外,更應重視“入住環保”,讓消費者更安心、放心。

祝董也就行業趨勢和公司發展發表了重要講話。他表示,存量房時代,裝企之間的競爭拼的就是實力,南鴻必須牢牢抓住 “更環保的高品質裝修”這一定位,以客戶需求為第一導向,設計師們也要不斷拓寬自身知識的廣度與深度,才能用更強的說服力簽下更多的客單量。

祝董同時對第三季度的業績做了肯定與表揚,希望公司在第四季度能再創佳績。
免費
免費申請戶型規劃
專屬設計師免費1對1全程服務
已經有3777人申請
24小時免費咨詢電話
400-8800-618
你家預算
108080元